Les Habitations Dumoulin & Fils
Développement domiciliaire
Accueil
Développement domiciliaire
Les Habitations Dumoulin & Fils
Accueil
Voir en taille réelle
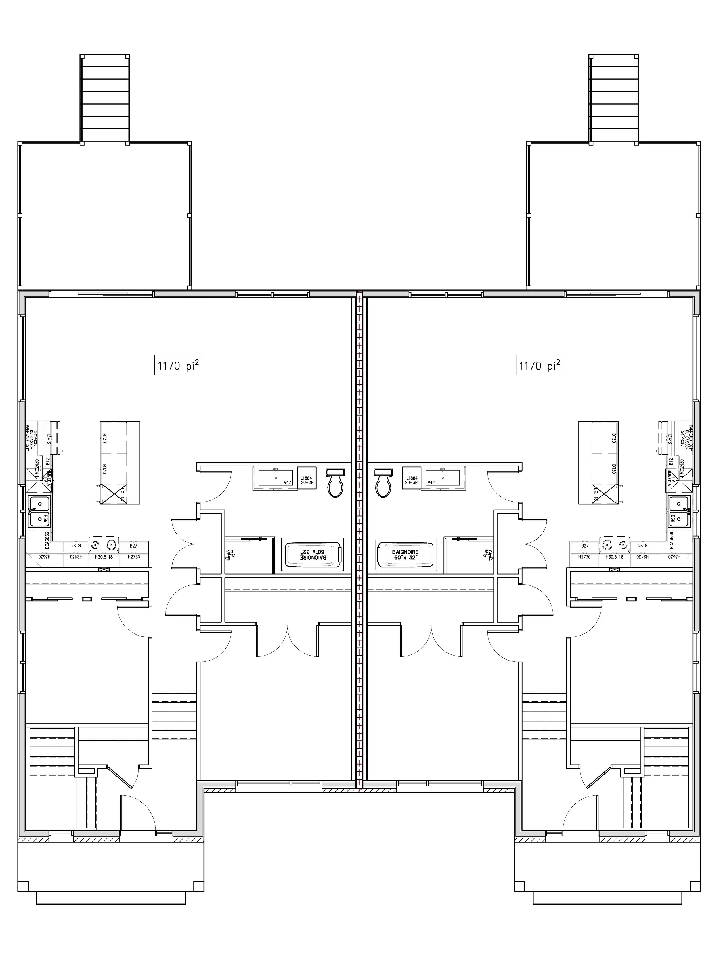
Le modèle JANIE
Caractéristiques
Étages :
1
Chambres :
2
Salles de bain :
1
Aire habitable (s-sol exclu) :
1 170 pi²
Garage :
non