Le modèle OLIVIA
Caractéristiques
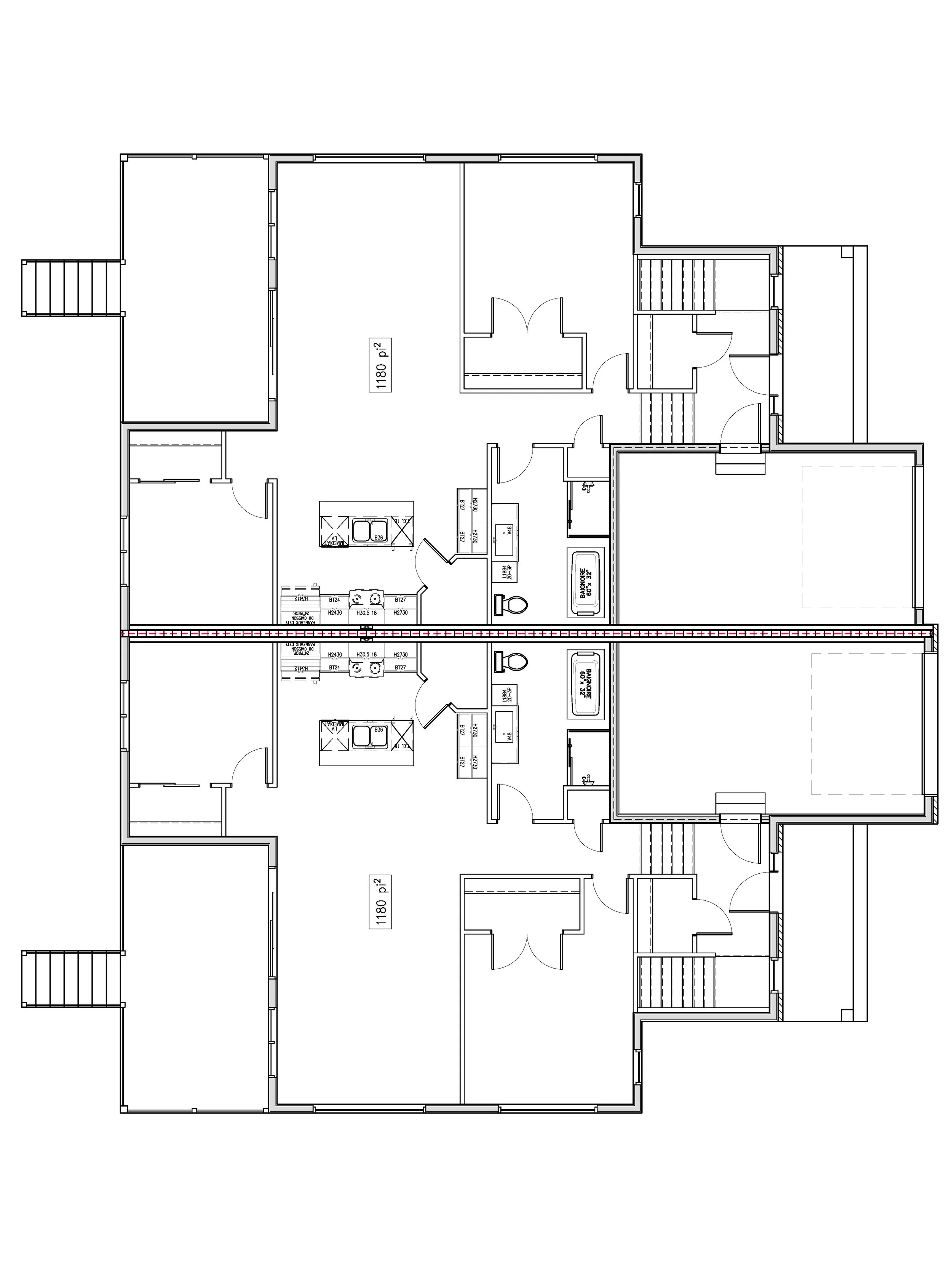
Étages : 1
Chambres : 2
Salles de bain : 1
Aire habitable (s-sol exclu) : 1 180 pi² + 287 pi²
Garage : oui
Étages : 1
Chambres : 2
Salles de bain : 1
Aire habitable (s-sol exclu) : 1 180 pi² + 287 pi²
Garage : oui